TRILOCALE CON BOX E SOLAIO
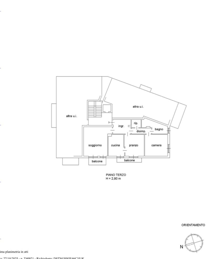
In una zona residenziale tranquilla e ben servita di Mandello del Lario, proponiamo in vendita un ampio trilocale di 110 mq situato al terzo piano con ascensore, all’interno di uno stabile in ottime condizioni generali.
L’appartamento si distingue per ambienti ariosi e ben distribuiti. L’ingresso conduce all’ampio soggiorno, un ambiente luminoso dotato di balcone che regala un piacevole sfogo esterno. La cucina abitabile, comoda e ben organizzata, dispone di un secondo balcone, ideale per chi ama uno spazio all’aperto anche nella zona giorno.
La zona notte offre due camere da letto di generose dimensioni, perfette per chi necessita di spazi funzionali e facilmente arredabili. A completare la soluzione un bagno finestrato e un ripostiglio, versatile e ampio, che può essere trasformato in un secondo bagno.
La proprietà comprende inoltre un box singolo e un solaio, entrambi inclusi nel prezzo.
Perché scegliere questa zona
Via Dante Alighieri è una delle aree più comode del paese: a pochi minuti a piedi si trovano negozi, scuole, mezzi pubblici e la stazione ferroviaria, perfetta per chi si sposta quotidianamente. Il lago e il centro storico sono raggiungibili in breve tempo, permettendo di vivere il meglio di Mandello: tranquillità, servizi e la bellezza del territorio lariano.
Un contesto ideale per famiglie, coppie e per chi desidera un appartamento ampio senza rinunciare alla praticità.
SERVIZI:
– Se stai pensando di VENDERE casa, offriamo un servizio per allineare le tempistiche tra VENDITA ed ACQUISTO usufruendo inoltre di una scontistica provvigionale ed un servizio “chiavi in mano”.
– Devi fare MUTUO? Un team di consulenti finanziari ti seguiranno per offrirti un prodotto di qualità in base alle esigenze avvalendosi di varie convenzioni stipulate con i più importanti istituti bancari. Con un appuntamento SENZA ALCUN IMPEGNO, potrai conoscere tutti i principali servizi offerti, le modalità della procedura, le varie agevolazioni fiscali e usufruire del servizio di perizia gratuita immobiliare per conoscere il reale valore immobiliare.
– Un gruppo di esperti in RISTRUTTURAZIONI di nostra conoscenza ti daranno assistenza e idee per la tua nuova casa.
IL PRESENTE ANNUNCIO NON HA VALIDITA’ CONTRATTUALE.






































































































































































